Lokalplan
Foreningen er beliggende i området der er omfattet af Lokalplan nr. 23.1 fra den daværende Farum Kommune.
Nedenstående er et uddrag af lokalplanen, den fulde plan kan rekvireres hos Furesø Kommune.
Lokalplan 23.1 Boligområderne Farum Nord-Øst, Ellegårdspark og Vejgårdspark
§1 Formål
Det er lokalplanens formål at ændre anvendelsesbestemmelsen for et ubebygget areal på Hvilebækvænge fra centerformål - bebyggelse til detailhandelsvirksomhed, liberalt erhverv og offentlige institutioner, boligbebyggelse samt bebyggelse til blandet bolig og erhverv - til boligformål (4 parcelhuse).
Samtidig er det lokalplanens formål at modernisere bestemmelserne om bebyggelse, beplantning, parkering m.v.
Lokaplanen fastholder endvidere den tidligere byplanvedtægts formål, som er at sikre et parcelhusområde og et række- og kædehusområde med fælles friareal, samt et mindre område til offentlige institutioner, til betjening af området.
§2 Områdets afgrænsning
Matrikelfortegnelse
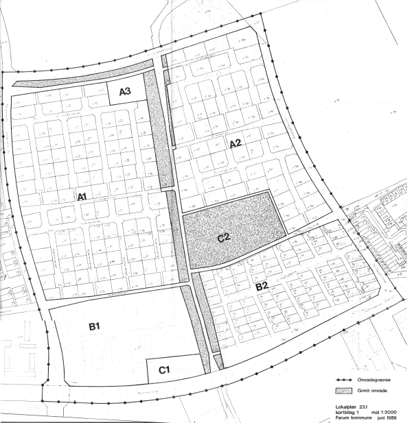
2.1 Lokalplanen afgrænses som vist på kortbilag 1 af Borgmester Jespersens Vej mod vest, Hvilebækgårdsvej mod nord, Solhøjgårdsvej mod øst samt Paltholmvej mod syd.
Delområder
2.2 Lokalplanens område opdeles i delområderne:
- A1, A2, A3, B1 og B2
- - boligformål (A1-A3 afgrænses af Borgmester Jespersens Vej, Hvilebækgårdsvej, Solhøjgårdsvej samt Kjærbostien og Munkehøjstien, B1 og B2 afgrænses af Borgmester Jespersens Vej, Kjærbostien og Munkehøjstien, Solhøjgårdsvej samt Paltholmvej).
- C 1
- - offentlige formål
institutioner for områdets beboere (Farumsødal). - C 2
- - offentlige formål
fælles friareal for områdets beboere (det grønne område med bl.a. boldbane og legeplads, afgrænset af Nord-Øststien samt Munkehøjstien).
§3 Områdets anvendelse
Boligområder
3.1 Delområderne A1, A2 og A3 må kun anvendes til boligformål. Bebyggelsen må kun bestå af åben, lav bebyggelse (parcelhuse).
3.2 Delområderne B1 og B2 må kun anvendes til boligformål. Bebyggelsen må kun bestå af tæt, lav bebyggelse (række- og kædehuse).
3.3 På hver ejendom må kun opføres eller indrettes én bolig.
Erhverv
3.4 Byrådet kan tillade, at der på ejendommen drives sådan virksomhed, som almindeligvis kan udføres i beboelsesområder under forudsætning af,
- at virksomheden drives af den der bebor den pågældende bolig,
- at virksomheden efter byrådets skøn drives på en sådan måde, at ejendommens karakter af beboelsesejendom ikke forandres (herunder ved skiltning og lignende), og områdets karakter af boligområde ikke brydes,
- at virksomheden ikke medfører ulempe for de omkringboende, og
- at virksomheden ikke medfører behov for parkering, der ikke er plads til på den pågældende ejendom.
Ejendommene må i øvrigt ikke benyttes til nogen form for erhvervsvirksomhed.
Offentlige formål
3.5 Delområde C1 udlægges til offentlige formål - institutioner eller lignende.
3.6 Delområde C2 udlægges til offentlige formål - fælles friareal m.v. for områdets beboere.
Tekniske anlæg
3.7 Inden for området kan opføres transformerstationer og andre tekniske anlæg til kvarteres forsyning, når de ikke har mere end 30 m2 bebygget areal og ikke gives en højde af mere end 3 m over terræn, og når de udformes i overensstemmelse med den øvrige bebyggelse.
§4 Udstykninger
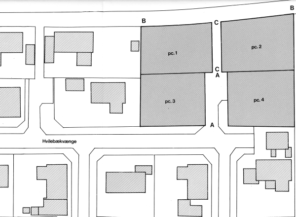
4.1 Udstykning af delområde A3 må kun foretages i overensstemmelse med den på kortbilag 2(2) viste retningsgivende bebyggelsesplan.
4.2 I delområderne A1, A2, B1, B2, C1 og C2 må yderligere udstykning ikke finde sted.
§5 Vej- og stiforhold
5.1 I delområde A3 udlægges veje og stier i princippet som vist på kortbilag 2. Boligvejen A-A udlægges i 10 meters bredde. Hovedstien B-B udlægges i 7 meters bredde og boligstien C-C udlægges i 4 meters bredde.
Vejadgang til områderne
5.2 Vejadgang til delområderne A1, A3 og B1 sker fra Borgmester Jespersens Vej, til delområderne A2 og B2 fra Solhøjgårdsvej og til delområde C1 fra Paltholmsvej.
Adgang fra den enkelte grund
5.3 Der må ikke etableres nogen form for adgang eller udkørsel fra parcellerne til fordelingsvejene (Borgmester Jespersens Vej, Hvilebækgårdsvej og Solhøjgårdsvej) eller til de 12,0 meter brede øst-vestgående boligstamveje (Vejgårdspark, Kjærbovænge, Hvilebækvænge, Enebovænge, Munkehøjvænge og Ellegårdspark).
Der må heller ikke etableres adgang eller udkørsel direkte fra parcellerne til de 7 meter brede hovedstier.
5.4 Vejadgang til de 4 nye parceller i delomårde A3 skal ske fra boligvejen, som vist på kortbilag 2.
5.5 Alle veje og hovedstier skal have niveaufri skæring.
Hjørneafskæringer
5.6 Ved vejtilslutning skal tilstødende ejendommes hjørner være brudte i mindst 5 meters bredde og med lige store vinkler mod vejlinierne.
Byggelinier
5.7 Langs følgende veje og stier pålægges byggelinier i de nedenfor angivne afstande fra vejskel.
| Paltholmvej | 10 m |
| Fordelingsvejene: Borgmester Jespersens Vej, Hvilebækgårdsvej og Solhøjgårdsvej | 5 m |
| Stamvejene: Vejgårdspark, Kjærbovænge, Hvilebækvænge, Enebovænge, Munkehøjvænge og Ellegårdspark | 5 m |
| Hovedstier | 2,5 m |
Arealet mellem byggelinien og vejskellet må ikke anvendes til nogen form for bebyggelse.
Parkering
5.8 Parkering udenfor parcellerne skal ske på de dertil indrettede parkeringsarealer.
§6 Bebyggelsens omfang og placering
Bebyggelsesprocent
6.1 Bebyggelsesprocenten i delområderne A1, A2 og A3 må for den enkelte grund ikke overstige 25.
Bebyggelsesprocenten i delområderne B1 og C1 må ikke overstige 30 for delområderne som helhed.
Bebyggelsesprocenten i delområde B2 må ikke overstige 30 for området som helhed excl. vejareal.
Antal etager
6.2 I delområderne A1, A3, B2 og C1 må bygninger ikke opføres med mere end én etage.
I delområde A2 må bygninger kun opføres med én etage med udnyttelig tagetage.
I delområde B1 må bygninger kun opføres med 2 etager.
Kælder
6.3 En eventuel kælder må ikke have loftet beliggende mere end 50 cm over niveauplan.
Garage
6.4 Garage eller carport må ikke opføres nærmere skel mod vej end 5,0 meter.
Facadehøjde
6.5 Bygningernes facade (målt fra terræn til facadens skæring med tagfladen) må ikke gives en højde, der overstiger 3,5 m over terræn, målt efter reglerne i Bygningsreglementet.
Placering
6.6 I delområde A1 må beboelsesbygninger på ejendomme beliggende vest for boligvejene kun opføres med facaden beliggende parallelt med vejen (længderetning orienteret nord-syd), i en afstand af 2,5 m fra vejskel.
I delområde A2 må beboelsesbygninger kun opføres med facade eller gavl parallelt med vej.
6.7 Indenfor delområderne B1, B2 og C1 må bebyggelse kun opføres på grundlag af en for hver af områderne samlet bebyggelsesplan.
Fælleshus
6.8 Indenfor delområde C2 må der efter byrådets nærmere godkendelse opføres enkelte mindre bygninger til formål, som er fælles for områdets beboere under forudsætning af, at det samlede etageareal ikke overstiger 200 m2, og at bygningerne gives en udformning og et udseende i overensstemmelse med den øvrige bebyggelse.
Tage
6.9 Tage skal udføres som sadeltage.
6.10 I delområderne A1, A3, B1 og C1 skal taghældningen være mellem 20° og 30°.
I delområde B2 må taghældningen højst svare til 1:40, idet øverste sternkote kan tillades hævet med op til 30 cm over eksisterende sternhøjde.
I delområde A2 skal taghældningen være mellem 30° og 50°.
§7 Bebyggelsens ydre fremtræden
Facader
7.1 Til udvendige bygningssider må ikke anvendes materialer, som efter byrådets skøn virker skæmmende.
7.2 Garagebygninger, carporte, udhuse og udestuer skal opføres med facader af samme materiale, som er anvendt til beboelseshusets facader eller i ren trækonstruktion.
Tage
7.3 Tage på beboelsesbygninger skal dækkes med tegl, tagsten, skifer, B7-eternitbølgeplader eller andet af byrådet særlig godkendt materiale.
7.4 Tage på garagebygninger, carporte, udhuse og udestuer skal være lig beboelseshusets tag eller med fladt tag inddækket med vandret stern.
Skiltning
7.5 Skiltning og reklamering må kun finde sted med byrådets særlige tilladelse.
Antenner
7.6 Der må ikke på ejendommene opsættes individuelle udendørs antenner til TV- og radiomodtagning eller til radioamatørvirksomhed, jf. § 9.3.
§8 Ubebyggede arealer
Hegn
8.1 Den på området etablerede hegnsplantning, etableret efter den af byrådet godkendte beplantningsplan, må ikke fjernes med mindre byrådet giver tilladelse hertil.
8.2 Hegnsplantning i delområde A3 skal ske efter en af byrådet godkendt beplantningsplan, udformet i nøje overensstemmelse med den øvrige hegnsplantning indenfor lokalområdet.
8.3 Hegnsplantningen skal fremstå som delvis klippet og delvis fritvoksende hæk. Ind mod de enkelte parceller skal hækken af den enkelte grundejer holdes klippet på siderne indtil ca. 180 cm højde.
Over denne højde kan hækken være fritvoksende. Beskæring til under 180 cm højde er ikke tilladt.
Forhaver
8.4 I delområde A1 må skel i arealet mellem bygninging og vej på ejendomme beliggende vest for boligvejene ikke markeres med hæk, hegn eller lignende.
8.5 Oplagring/opbevaring af større både (kølbåde) og oplagring/opbevaring af uindregistrerede campingvogne må ikke finde sted.
8.6 Ubebyggede arealer skal ved beplantning, befæstelse eller lignende gives et ordentligt udseende.
Forudsætninger for ibrugtagen af ny bebyggelse
9.1 Bebyggelse må ikke tages i brug, før der er etableret beplantning i overensstemmelse med §8.
9.2 Bebyggelse skal tilsluttes fjernvarme ved Farum Fjernvarme a.m.b.a. Bebyggelse må ikke tages i brug, før denne tilslutning har fundet sted.
9.3 Bebyggelse skal tilsluttes det i Farum Nord-Øst etablerede fællesantenneanlæg, jf. §7.6.
§10 Grundejerforening
10.1 Der skal oprettes grundejerforeninger med medlemspligt for samtlige ejere af grunde inden for lokalplanens delområder A1, A2 og A3 (Farum Nord-Øst) og B2 (Ellegårdspark).
10.2 Grundejerforeningen skal forestå drift og vedligeholdelse af de under foreningen hørende fællesarealer og fællesanlæg.
10.3 Grundejerforeningens vedtægter skal godkendes af byrådet.
§11 Servitutter
Den under den 30. april 1969 tinglyste servitut samt tillæge 1, tinglyst den 20. december 1969, vedrørende udstykningsområdet Farum Nord-Øst ophæves.
§12 Eksisterende bebyggelse
12.1 Nærværende lokalplan er ikke til hinder for bibeholdelse af eksisterende lovlig bebyggelse eller for fortsættelse af dennes lovlige anvendelse.
12.2 Udvidelse ved om- eller tilbygninger eller ibrugtagen til anden anvendelse i strid med lokalplanens bestemmelser må ikke finde sted.
§13 Ophævelse af byplanvedtægt
Partiel byplanvedtægt nr. 23, godkendt af boligministeriet den 30. december 1968 ophæves.
Således vedtaget af Farum Byråd den 8. oktober 1986.
Kortbilag 1

Kortbilag 2
